Dom w Buku nr3

Lokalizacja: Buk, PL

Architekci: Marcin Szymański

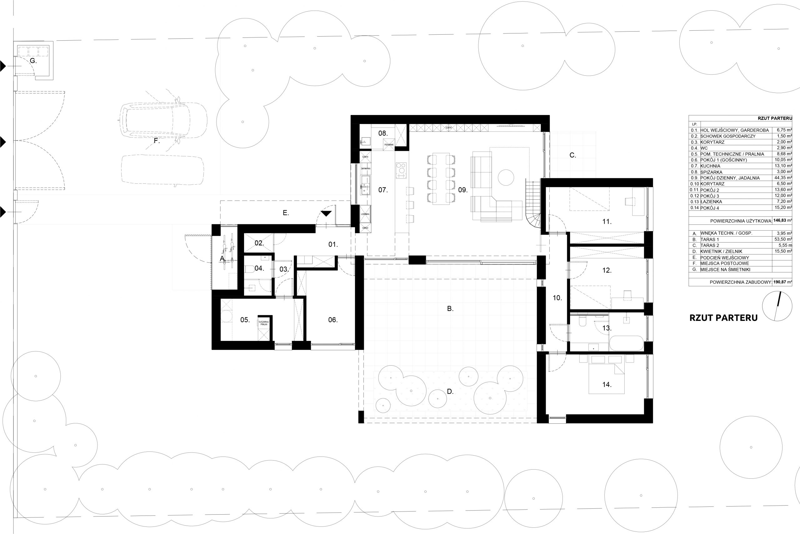
Powierzchnia użytkowa: 150m2

Inwestor: HARMONIA Sp. z o.o.

Data: 2025

Status: w budowie (2025)

EN DE PL